1876 Lake Michigan Dr NW
Grand Rapids, MI 49534

Images

Listings Photos

Virtual Staged Photos

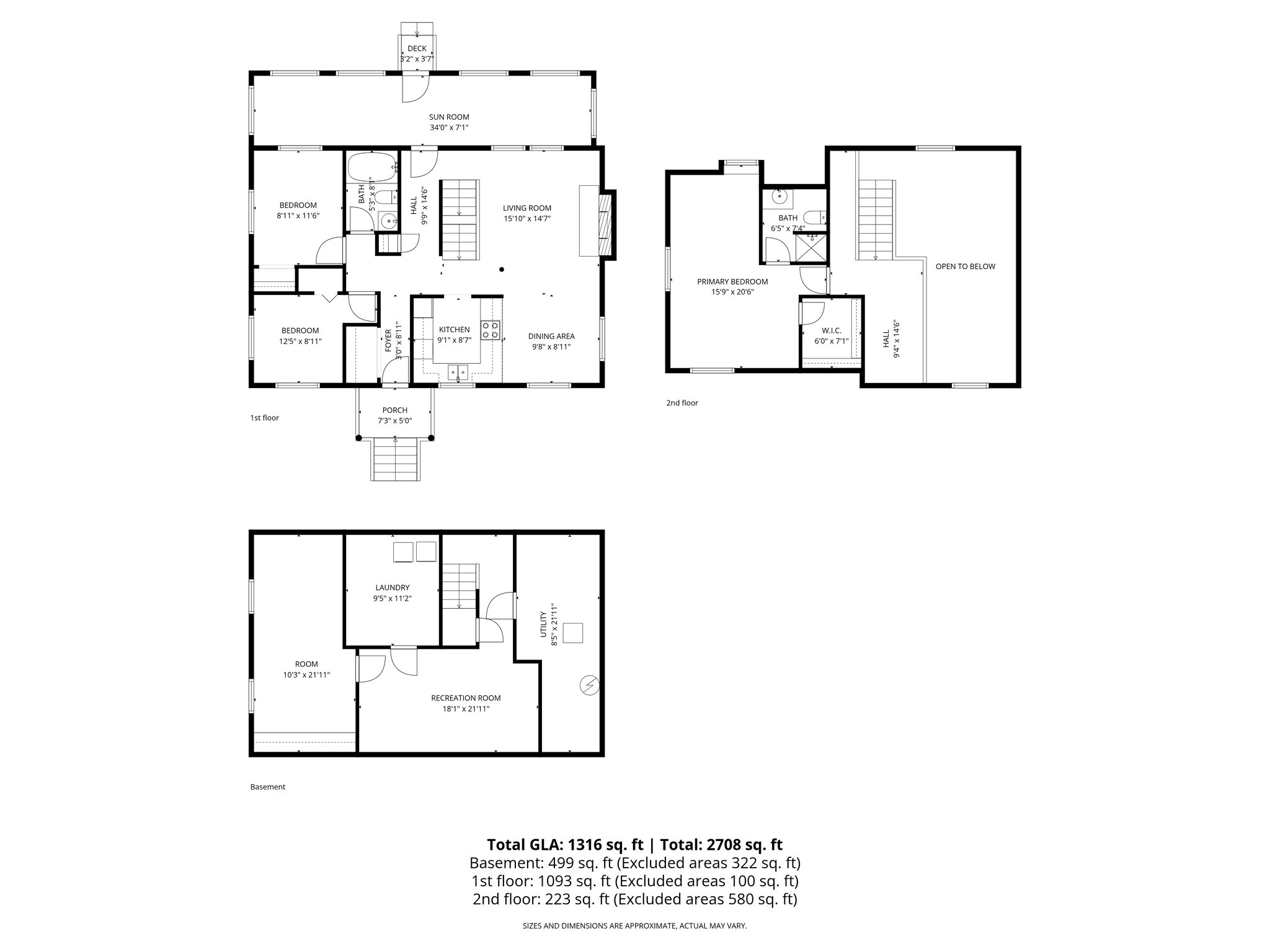
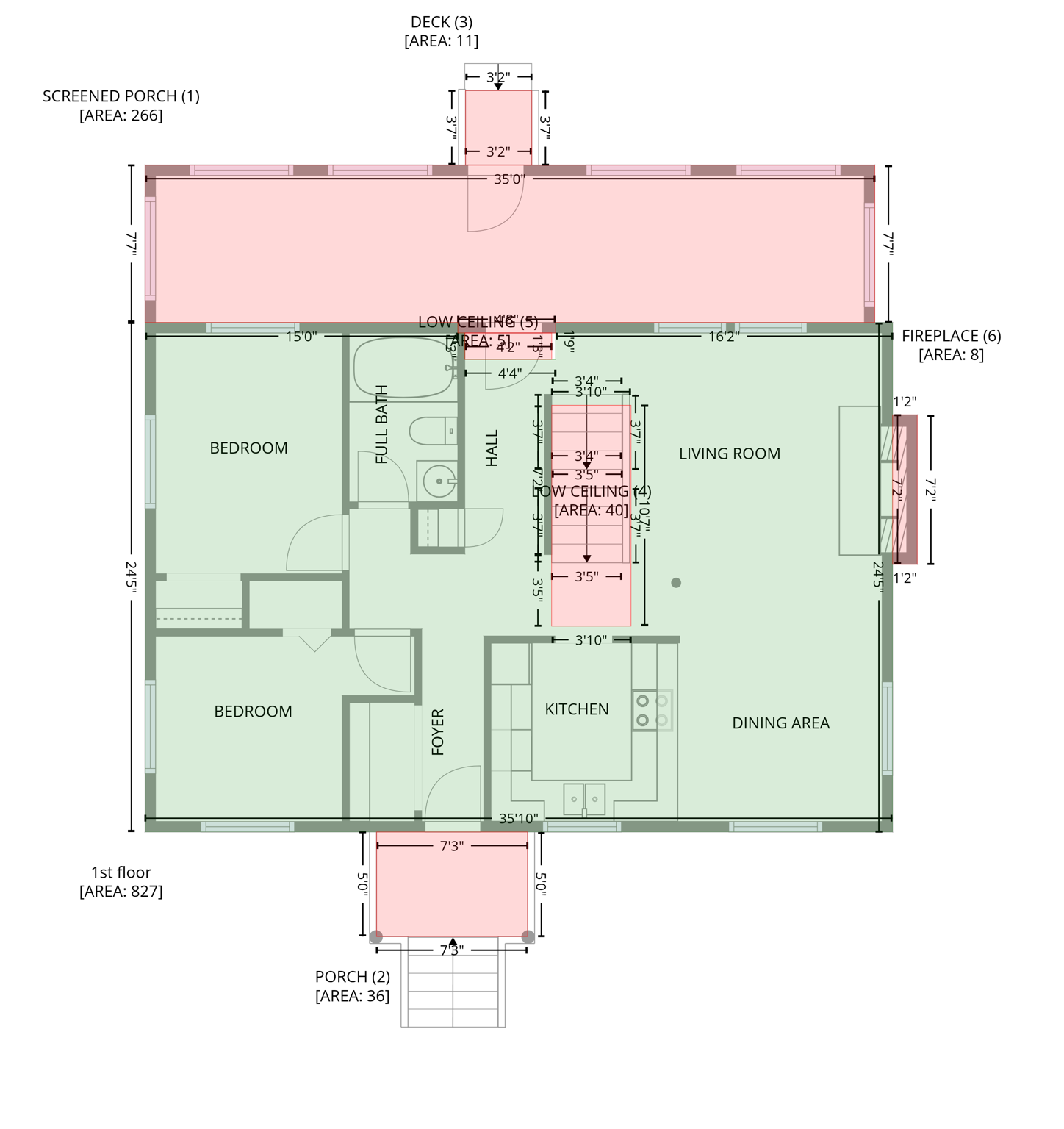
Floor Plans

3D Tour

Contact

Feel free to contact us for more details!

Marc Buist

Marc Buist

Anchor Realty

Anchor Realty